PIANO PRIMO - APPARTAMENTI A e B

aeb.jpeg

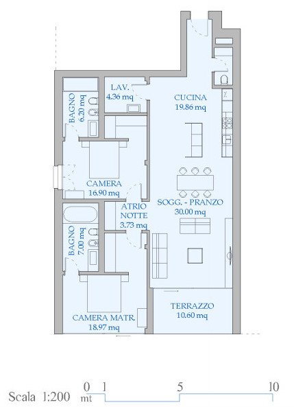
Gli appartamenti saranno così costituiti: entrata, servizio igienico, lavanderia, ampio spazio aperto cucina - pranzo - soggiorno, atrio notte, 2 camere da letto con guardaroba e bagno proprio, terrazzo esterno coperto e giardino.

 

I BAGNI

vista02.jpeg

SUPERFICI COMMERCIALI

APPARTAMENTO A

Alloggio   135,72 mq
Terrazzo 10,60 mq x 50% 5,30 mq
Giardino 96,70 mq x 30% 29,00 mq
  Totale Commerciale 170,02 mq

APPARTAMENTO B

 

Alloggio   135,72 mq
Terrazzo 10,60 mq x 50% 5,30 mq
Giardino 91,51 mq x 30% 27,45 mq
  Totale Commerciale 168,47 mq

 

1sezione.jpeg

 

piantaab.jpeg

1planimetria.jpeg

“La presente documentazione e le informazioni in essa contenute sono puramente indicative e non costituiscono elemento contrattuale. Le immagini e le planimetrie sono al solo fine illustrativo”